منتجات
محول 630 كيلو فولت أمبير
الموديل:S-630/10-0.4
القدرة: 630 كيلو فولت أمبير
جهد الإدخال: 10 كيلو فولت
جهد الخرج:0.4 كيلو فولت
أمبير المحولات 630 كيلو فولت أمبير: 36.4 أمبير/909.4 أمبير
التردد: 50 هرتز
مجموعة الاتصال: Dyn11
ميزات
مواصفات المحولات 630 كيلو فولت أمبير
ورقة بيانات محولات 630 كيلو فولت أمبير
|
نموذج |
S-630/10-0.4 |
|
سعة |
630 كيلو فولت أمبير |
|
مساهمة الجهد |
10 كيلو فولت |
|
الجهد الناتج |
0.4 كيلو فولت |
|
أمبيرات المحولات 630 كيلو فولت أمبير |
36.4A/909.4A |
|
تكرار |
50 هرتز |
|
مجموعة الاتصال |
داين11 |
|
سعة تحميل المحولات 630 كيلو فولت أمبير |
504 كيلو واط |
|
مقاومة الجهد |
4% |
|
طريقة التبريد |
على |
|
سعة زيت المحولات 630 كيلو فولت أمبير |
270 كجم |
|
أبعاد المحولات 630 كيلو فولت أمبير |
1520*1060*1250 مللي متر |
|
وزن |
1700 كجم |
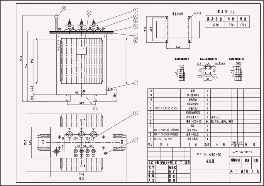
تفاصيل المحولات 630 كيلو فولت أمبير
يتكون المحول 630 كيلو فولت أمبير بشكل أساسي من قلب الحديد، الملف، خزان الزيت، المبرد، المواد العازلة، إلخ.
النواة الحديدية هي المكون الأساسي للمحول، والذي يتكون من صفائح حديدية متعددة مكدسة معًا لزيادة التدفق المغناطيسي للدائرة المغناطيسية.
الملف مصنوع من سلك نحاسي عالي التوصيل ويستخدم لتحويل الطاقة الكهربائية.
يتم استخدام خزان الوقود والمبرد لتبديد الحرارة، بينما يتم استخدام المادة العازلة لعزل كل جزء.

رسومات المنتج:
نحن نقدم رسومات المنتج لمحول 630 كيلو فولت أمبير لمساعدتك على فهم الهيكل التفصيلي للمحول، وللمساعدة في التركيب والصيانة. إذا كان لديك أي أسئلة حول رسومات المنتج، فلا تتردد في الاتصال بنا.
تغليف المنتج:
نحن نولي اهتمامًا كبيرًا بتغليف وشحن منتجاتنا لضمان وصولها في حالة ممتازة. يتم تعبئة المحول في صندوق خشبي قوي مصنوع خصيصًا لمنع التلف أثناء الشحن. كما نقدم أيضًا تعليمات التثبيت والتشغيل التفصيلية لضمان الأداء الأمثل والسلامة.

ميزة الشركة:
شركتنا هي الشركة الرائدة في مجال تصنيع وتوريد المحولات عالية الجودة، مع أكثر من 20 عامًا من الخبرة في الصناعة. نحن نفخر بعملياتنا الصارمة لمراقبة الجودة، والتزامنا بإرضاء العملاء، وقدرتنا على تقديم منتجات عالية الجودة بأسعار تنافسية.
احتياطات المحولات المستوردة:
عند استيراد المحولات، من المهم اتباع بعض الاحتياطات لضمان سلاسة العملية.
أولاً، تأكد من أن المحول يلبي اللوائح والمتطلبات المحلية.
ثانيا، ترتيب التخليص الجمركي والنقل مقدما.
وأخيرًا، قم بفحص المحول جيدًا عند وصوله للتأكد من أنه في حالة ممتازة.
في الختام، فإن محول 630 كيلو فولت أمبير هو محول موثوق وفعال وسهل الاستخدام ومثالي لمجموعة واسعة من التطبيقات الصناعية والتجارية. إذا كانت لديك أي أسئلة أو كنت ترغب في معرفة المزيد عن هذا المنتج، فلا تتردد في الاتصال بنا.
الوسم : محول 630 كيلو فولت أمبير، الصين، الموردين، الشركات المصنعة، مصنع، شراء، السعر، للبيع
قد يعجبك ايضا
إرسال التحقيق




