منتجات
محول 2 ميجا فولت أمبير
الطاقة المقدرة: 2 ميجا فولت أمبير
الجهد الأساسي: 22 كيلو فولت
الجهد الثانوي: 415 فولت
التقييم الحالي: 52.49A/2782.49A
عدد المراحل: 3
التردد: 50 هرتز
ميزات
محول 2 ميجا فولت أمبير - اختيارك الموثوق لتوزيع الطاقة بكفاءة
مواصفات المحولات 2 ميجا فولت أمبير
تلعب المحولات دورًا حيويًا في توزيع الطاقة، ويعتبر محول 2 ميجا فولت أمبير من شركتنا هو الحل الأمثل لتلبية متطلبات الطاقة الخاصة بك. تم تصميم محولنا 2 MVA لتوفير مصدر طاقة موثوق وفعال للاستخدام الصناعي والتجاري والسكني.
ورقة بيانات محول 22kv 2MVA:
القوة المصنفة | 2 ميجا فولت أمبير |
الجهد الأساسي | 22 كيلو فولت |
الجهد الثانوي | 415 V |
2 ميجا فولت أمبير تصنيف تيار المحولات | 52.49A/2782.49A |
عدد المراحل | 3 |
تكرار | 50 هرتز |
نوع التبريد | أونان/أوناف |
2 ميجا فولت أمبير وزن المحول | 4050 كجم |
أبعاد المحول 2 ميجا فولت أمبير | 1970*1420*1850 ملم |
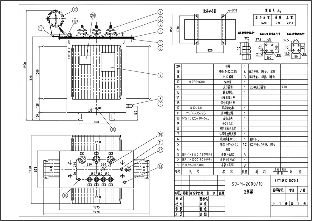
رسم الخطوط العريضة:

رسم مخطط محول 2000KVA 10KV كمرجع
شهادة المنتج:
لقد حصل محولنا 22kv 2MVA على شهادة نظام إدارة الجودة ISO 9001:2015، مما يضمن أعلى معايير الجودة والسلامة. علاوة على ذلك، فإننا نقدم العديد من الشهادات الأخرى مثل شهادات CE، UL، IEC، وROHS.

عملية إنتاج المنتج:
يخضع محولنا بقدرة 2 ميجا فولت أمبير لعملية إنتاج صارمة تضمن معايير الجودة العالية ورضا العملاء. تتضمن عملية الإنتاج العمليات التالية:
- قطع ولف الفولاذ
- التجميع الأساسي والعزل
- اللف والإنهاء
- العزل الأساسي والملفي
- الدهان والتشطيب

تغليف تصدير المنتج:
يتم تعبئة محولاتنا 22 كيلو فولت 2 ميجا فولت أمبير بعناية فائقة لضمان النقل الآمن لعملائنا. نحن نقدم خيارات التغليف القياسية مثل الصناديق الخشبية والمنصات النقالة والتعبئة الرغوية. بالإضافة إلى ذلك، نحن نقوم بتخصيص التعبئة والتغليف على أساس متطلبات العملاء.


القدرة التصديرية:
نحن ملتزمون بتلبية طلب عملائنا في جميع أنحاء العالم من خلال محولاتنا الفعالة والجودة. محولنا 2 MVA لديه قدرة تصدير تصل إلى 500 وحدة شهريًا، ويمكننا ضمان التسليم في الوقت المناسب إلى أي جزء من العالم.

مخصصة لعملائنا من جنوب أفريقيا. الموديل: محول 4000KVA 11KV 0.415KV. المتطلبات: خط صادر جانبي
في الختام، يوفر محولنا بقدرة 2 ميجا فولت أمبير توزيعًا موثوقًا وفعالًا للطاقة للمناطق الصناعية والتجارية والسكنية. ومع حصولنا على شهادة ISO 9001:2015 والعديد من الشهادات الأخرى، فإننا نضمن أعلى معايير الجودة. إن عملية الإنتاج الصارمة لدينا وتغليف الصادرات من الدرجة الدولية تجعلنا الخيار الأمثل لعملائنا في جميع أنحاء العالم. لا تتردد في التواصل معنا للحصول على متطلبات المحولات الخاصة بك.
الوسم : محول 2 ميجا فولت أمبير، الصين، الموردين، الشركات المصنعة، مصنع، شراء، السعر، للبيع
قد يعجبك ايضا
إرسال التحقيق






