منتجات
KS13 محول طاقة التعدين المغمور بالزيت
الموديل: KS13 محول طاقة منجم مغمور بالزيت
الجهد: 10KV
السعة: ١٢٥٠ كيلو فولت أمبير
ميزات
1.ميزات المنتج
تستخدم محولات المناجم من سلسلة KS13 كمعدات لتوزيع الطاقة للمناجم. يتميز المنتج بالحجم الصغير وسهولة الدمج والهيكل المعقول والخسارة المنخفضة. لها خصائص الأداء الحراري الجيد وما إلى ذلك.
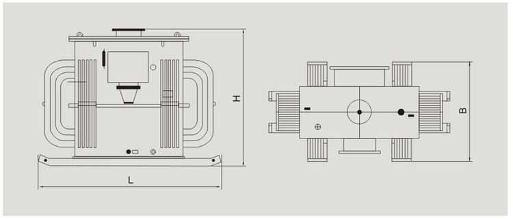
This series of products are made of stacked silicon steel sheets with high magnetic permeability. The structure is sturdy. High and low voltage cable junction boxes are welded on both sides of the box wall. As a cable connection, the high voltage coil must have a tap voltage of ±5 percent of the rated voltage. The power supply must be cut off first, and then the wind and rain of the tap changer on the box wall must be removed for conversion. The low-voltage side of the voltage transformer allows the "Y" type to be connected to 693V or the "D" type to be connected to 400V for power supply, and the secondary terminal is directly installed in the cable junction box. The head leads out six porcelain sleeves for the user to change the transformer hoisting and use the hanging climbing welded on the box wall. The bottom of the transformer box is equipped with a skid, and there are installation holes on the skid, which can be used for mines and mine cart rollers when needed.
2. التطبيق
وهي مناسبة لمحولات طاقة التعدين المغمورة في الزيت - بسعة 1250 كيلو فولت أمبير وأقل وبجهد 10 كيلو فولت وأقل. هذا النوع من المحولات المنجمية عبارة عن محولات مغمورة بالزيت - بدون انفجار - من المتطلبات. يتم استخدامه بشكل أساسي كمصدر للطاقة لإضاءة المناجم أو سحب الطاقة أثناء توزيع طاقة المناجم. بعد نقل محولات هذه السلسلة ، يمكن تجميعها مع الأجزاء المفككة ذات الصلة واختبارها دون الحاجة إلى فحص القلب المعلق.
3. المعايير
المعايير التي تتبعها هذه السلسلة من المحولات:
GB1094.1-2-1996 ، GB1094.3 ، 5-2003 ، GB / T6451-2008 ، GB12173-2008.
4. استخدام بيئة وظروف العمل
1). يجب ألا يتجاوز الارتفاع 1000 متر فوق مستوى سطح البحر ، وسيتم شرح البيئة الخاصة بشكل منفصل ؛
2). درجة الحرارة المحيطة:
درجة الحرارة القصوى زائد 40 درجة ؛
أعلى متوسط درجة حرارة يومية زائد 25 درجة ؛
أعلى متوسط درجة حرارة سنوية تزيد عن 20 درجة ؛
أدنى درجة حرارة خارجية هي -20 درجة.
3). The relative humidity of the surrounding air is not more than 95 percent " plus 25 degree ";
4). على الرغم من وجود غبار الفحم والغاز في المنجم. لكن لا يوجد مكان خطر الانفجار ؛
5). الشكل الموجي لجهد مصدر الطاقة هو موجة جيبية تقريبًا ؛
5. معنى النموذج

6. معلمة فنية

الفولطية المقدرة (kVA) | نطاق الجهد والتنصت | رمز الاتصال | لا - خسارة الحمل (W) | في - خسارة التحميل (W) | لا - تحميل الحالي (نسبة مئوية) | معاوقة ماس كهربائى ( نسبه مئويه ) | أبعاد | |||||||
HV (كيلو فولت) | نطاق التسجيل HV | LV (كيلو فولت) | وزن الآلة | وزن الزيت | الوزن الكلي (كلغ) | طول | عرض | ارتفاع (مم) | ||||||
50 | 6.3 10.5 11 | ±22.5 percent | 0.693-0.4 | Yy 0- d11 | 100 | 910/870 | 1.3 | 4 | 160 | 100 | 400 | 1000 | 850 | 900 |
80 | 130 | 1310/1250 | 1.2 | 220 | 110 | 500 | 1000 | 880 | 950 | |||||
100 | 150 | 1580/1500 | 1.1 | 280 | 130 | 600 | 1100 | 900 | 960 | |||||
125 | 170 | 1890/1800 | 1.1 | 290 | 140 | 630 | 1100 | 920 | 980 | |||||
160 | 200 | 2310/2200 | 1 | 370 | 160 | 720 | 1150 | 940 | 1020 | |||||
200 | 240 | 2730/2600 | 1 | 390 | 170 | 790 | 1250 | 950 | 1040 | |||||
250 | 290 | 3200/3050 | 0.9 | 470 | 190 | 900 | 1300 | 950 | 1060 | |||||
315 | 340 | 3830/3650 | 0.9 | 540 | 230 | 1100 | 1400 | 980 | 1100 | |||||
400 | 410 | 4520/4300 | 0.8 | 630 | 250 | 1260 | 1450 | 1020 | 1140 | |||||
500 | 48 | 5410/5150 | 0.8 | 750 | 290 | 1480 | 1550 | 1060 | 1200 | |||||
630 | 570 | 6200 | 0.6 | 4.5 | 890 | 360 | 1920 | 1700 | 1170 | 1250 | ||||
800 | 700 | 7500 | 0.6 | 1070 | 410 | 2180 | 1800 | 1320 | 1280 | |||||
1000 | 830 | 10300 | 0.6 | 1250 | 450 | 2450 | 1800 | 1350 | 1330 | |||||
1250 | 970 | 12000 | 0.5 | 1460 | 510 | 2870 | 1800 | 1390 | 1390 | |||||
الوسم : ks13 محول طاقة التعدين مغمور بالزيت ، الصين ، الموردين ، الشركات المصنعة ، المصنع ، شراء ، السعر ، للبيع
قد يعجبك ايضا
أكثر20KV ثلاث مراحل محولات توزيع الزيت المملوءة
أكثرمحول من النوع المغمور بالزيت ومبرد ذاتيًا ومحكم الغلق
أكثرمحول توزيع من النوع المغمور بالزيت ثلاثي الطور
أكثرمحول توزيع مبرد بالزيت ثلاثي الطور بقدرة 35 كيلو فولت
أكثرمحول توزيع مغمور بالزيت ثلاثي الطور 10KV
أكثرمحولات الطاقة الفرعية لتوزيع السبائك غير المتبلورة
إرسال التحقيق



