منتجات
محول 250 كيلو فولت أمبير
الموديل:SM-250/10
المادة الأساسية للحديد: صفائح فولاذية من السيليكون المدرفلة على البارد
هيكل الحديد الأساسي: التصفيح
لف الجهد العالي: 10 كيلو فولت
لف الجهد المنخفض: 0.4 كيلو فولت
ميزات
مواصفات المحولات 250 كيلو فولت أمبير

ورقة بيانات محولات 250 كيلو فولت أمبير
القيمة المقدرة للمحول SM-250/10 المغمور بالزيت | |||
1 | نموذج | S-M-250/10 | |
2 | مادة الحديد الأساسية | صفائح الفولاذ السليكونية المدرفلة على البارد | |
3 | هيكل الحديد الأساسي | التصفيح | |
4 | لف الجهد العالي | كيلو فولت | 10 |
5 | لف الجهد المنخفض | كيلو فولت | 0.4 |
6 | الجهد العالي المقدر الحالي | A | 14.43 |
7 | الجهد المنخفض تصنيف الحالي | A | 360.8 |
8 | مجموعة اتصال | داين11 | |
9 | تردد مصنف | هرتز | 50 |
10 | تصنيف القدرة | كيلو فولت أمبير | 250 |
11 | رقم المرحلة | 3 | |
12 | طريقة تنظيم الجهد | تغيير خارج الدائرة الصنبور | |
13 | موقف تنظيم الجهد | V | الجانب عالي الجهد |
14 | نطاق تنظيم الجهد | ±5% أو ±2X2.5% | |
15 | طريقة التبريد | على | |
مستوى عزل SM-250/10 المحولات المغمورة بالزيت | |||
1 | الجهد العالي المتعرج البرق موجة الجهد النبضي الكامل (الذروة) | كيلو فولت | 75 |
2 | جهد نبضي متعرج عالي الجهد (الذروة) | 85 | |
3 | تردد الطاقة المقدر لوقت قصير يتحمل جهد لف الجهد العالي (القيمة الفعالة) | كيلو فولت | 35 |
4 | تردد الطاقة المقدر لوقت قصير يتحمل جهد لف الجهد المنخفض (القيمة الفعالة) | كيلو فولت | 5 |
ارتفاع درجة حرارة محول 250KVA | |||
1 | أعلى النفط | K | 55 |
2 | لف (متوسط) | 65 | |
3 | لف (نقطة ساخنة) | 78 | |
4 | قلب حديدي، وخزان وقود، وسطح هيكلي | 75 | |
فقدان عدم التحميل لمحول 250 كيلو فولت أمبير | |||
1 | خسائر عدم التحميل عند التردد والجهد المقنن | كيلوواط | 0.26 |
تيار عدم التحميل للمحول SM-250/10 المغمور بالزيت | |||
1 | 100% الجهد المقنن | % | 0.9 |
فقدان الحمل SM-250/10 محول مغمور بالزيت | |||
1 | الصنبور الرئيسي (75 درجة) | كيلوواط | 2.56 |
مقاومة محول 250KVA | |||
1 | الصنبور الرئيسي | % | 4.0 |
مستوى الضوضاء | ديسيبل | 53 |
أمبير المحولات 250 كيلو فولت أمبير: 14.43 أمبير/360.8 أمبير
محول 250 كيلو فولت أمبير تيار الحمل الكامل: 360.8 أمبير
حجم الكابل لمحول 250 كيلو فولت أمبير: HV 3c X 35/ 50 sq.mm LV 3.5 CX 300 sq.mm
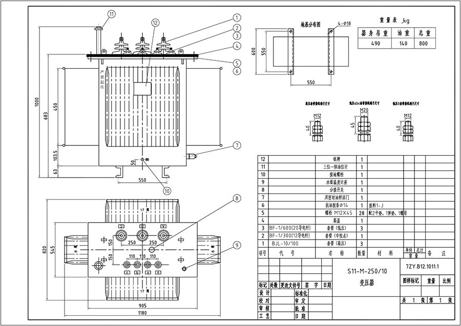
سعة زيت المحولات 250 كيلو فولت أمبير: 140 كجم
محول 250 كيلو فولت أمبير نحاس الوزن: 200 كجم
مقاس المحول 250 كيلو فولت أمبير: 1180*820*1000 مم
سعر محول النحاس 250 كيلو فولت أمبير: 2*71.40 دولار أمريكي/المجموعة
لوحة محولات 250 كيلو فولت أمبير
رسم مخطط محول 250KVA

الوسم : محول 250 كيلو فولت أمبير، الصين، الموردين، الشركات المصنعة، مصنع، شراء، السعر، للبيع
قد يعجبك ايضا
إرسال التحقيق




